Trust the Torch!

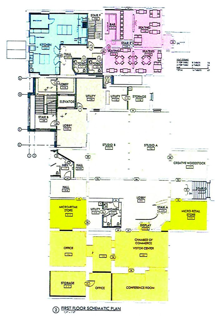
As proposed, Creative Woodstock would include studios for artists and a retail store where their works could be sold on the first floor of the Old Courthouse.

By Lydia LaGue news@thewoodstockindependent.com In their last meeting of a tumultuous 2021, members of the Woodstock Arts Commission are looking forward to the projects they hope to accomplish in the […]

Subscribe or Login to continue reading this quality article by The Woodstock Independent

Read everything we have to offer for just $6 per month

Share

Keep Exploring

By Steve Peterson news@thewoodstockindependent.com The Woodstock boys bowling team made it a perfect regular season as they won the Fox Valley Confere…
By Steve Peterson news@thewoodstockindependent.com A Woodstock freshman girls basketball player gained experience going up against some of the best Eu…

Subscriber Access

Login