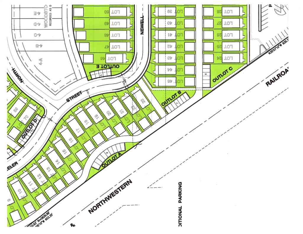
Developers of the proposed Founder’s Crossing housing development downtown have decided to conduct a public relations campaign before they take their latest plan to the Woodstock City Council. According to […]
By Steve Peterson WOODSTOCK STREAKS Getting ready to haunt Morris Woodstock is the 15th seed, and will face second-seed Morris, 8-1, inthe first round…
October 30, 2025
 
								 
											